Metal stairs Mix Extra Metal U-180 13 elements - ASK FOR PRICE!
Description
Stairs made to individual order - ASK FOR PRICE!
CORA metal stairs, model Mix Extra Metal 250 U-180, 13 elements
Mix Extra Metal stairs are self-assembly stairs.
The set includes 13 stairs elements, foldable to 14 levels. The elements are made of checkered sheet metal and powder-coated steel in a matt black structure (RAL 9005). After ordering the service, the manufacturer performs professional installation within the country for an additional fee.
Metal stairs as a modern application in construction replace traditional modular stairs.
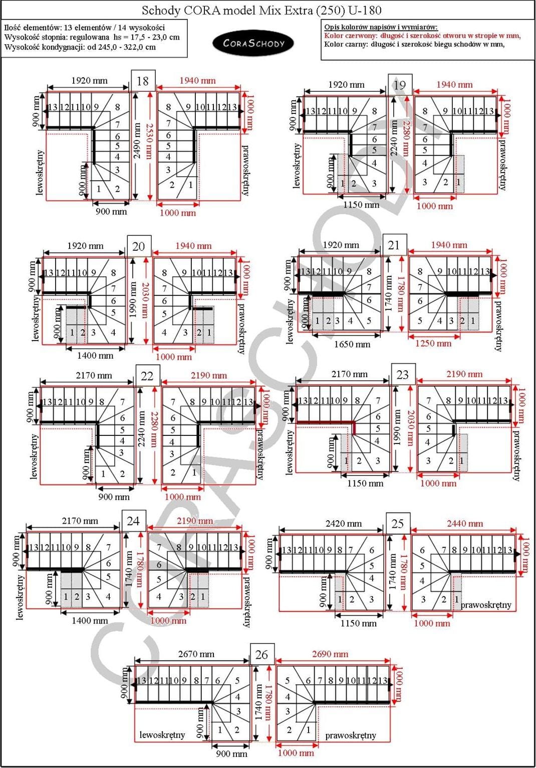
Mix Extra Metal stairs can be installed in one of 52 configurations, all of which are presented by the manufacturer. This model has the original U-180 treatment, both right and left. It is possible to order a simple treatment after adding an annotation to the order form.
It is recommended to install the stairs against the wall, up to 5 cm from it, which allows for the installation of anchors. If the wall cannot withstand the anchoring, a support column should be used instead. For free-standing stairs, the use of a support column as well as a balustrade securing both sides is planned, additional options available on request.
Available colors to choose from:
- black matt structure (RAL 9005)
- silver matt structure (RAL 9006)
- white (RAL 9003)
- satin steel
- anthracite graphite
Description, Parameters, Application
Application: internal stairs (inside the building)
Load capacity: maximum load per step 200 kg
Weight: Set of stairs / set of 13 elements 220 kg
Stair type: single beam stairs (modular)
Type of application: modular stairs, universal installation and use, straight, left-hand, right-hand
Type of rooms: for small, medium and large rooms
Construction type: modular metal 250
Configuration, layouts: possible use of U-180 stairs in 52 layouts
Balustrade type: vertical baluster filling (metal) 22 mm
Producer: Polish manufacturer of modular metal stairs
Technical description
height: 245 / 322 cm,
number of elements: 13 pieces of steps / 14 heights,
step height: adjustable 17.5 / 23.0 cm,
straight step size: 310 (250+60) mm
step thickness: 40 mm

opening in the ceiling: minimum 1690 x 1780 mm

metal color: matt black structure (RAL 9005)
run width:
- U-180 treatment: 900 / 900 / 900 mm
type of steps: checkered sheet,
step color: illustrative photo: checkered sheet / matt black structure (RAL 9005)
Modular design: 250 metal
One-sided balustrade
vertical baluster filling (metal) 22 mm
wood handle 50 mm
Example heights and sizes
Floor to floor 193 - 253 cm - 10 steps / 11 heights (- 3 steps)
Floor to floor 210 - 276 cm - 11 steps / 12 heights (- 2 steps)
Floor to floor 228 - 299 cm - 12 steps / 13 heights (- 1 step)
Floor to floor 245 - 322 cm - 13 steps / 14 heights (Standard)
Floor to floor 263 - 345 cm - 14 steps / 15 heights (+ 1 step)
Floor to floor 280 - 368 cm - 15 steps / 16 heights (+ 2 steps)
Additional information
Important information regarding the safety of use and use of stairs:
The stairs should partially run against the wall. They cannot be moved away from the wall by more than 5 cm. This is related to the safety of using the stairs. It is necessary to use a wall anchor.
If the stairs are located as free-standing, it is recommended to use:
- support pole,
- balustrade on both sides of the stairs,
Custom-made stairs to be agreed:
If the stairs cannot be adjusted according to the configurations below, we will make custom-made stairs according to the diagrams.
We will design and estimate stairs based on:
- submitted building cross-section views with actual dimensions,
- or prepare a sketch with actual dimensions and send it to e-mail: [email protected]
We will prepare a special offer in our online store in the made-to-order category.
Time limit for completion
- Delivery of stairs without assembly – 2 / 3 weeks
- Delivery of stairs with assembly – 4 / 6 weeks
CONTACT: Technical advice directly from 9.00 a.m. to 7.00 p.m.
Tel/mobile: +48 509 046 444. Tel/fax: (0048) 65 / 511 92 16, e-mail: [email protected]
Salon and exhibition (Poland) ul. Gostyńska 61, 64-000 Kościan