Stairs modular CORA model Mix extra 00 U-180 13 elements
Description
Stairs modular CORA model Mix extra 00 U-180 13 elements
Mix Extra 00 stairs are stairs for self-assembly.
The set includes 13 elements of stairs, folded into 14 levels. The elements are made of solid wood (color to choose from the manufacturer's color palette) and powder coated steel in black mat structure. After ordering the service for an additional fee, professional installation in the country is carried out by the manufacturer.
Modular stairs as a modern application in construction, replace traditional modern wooden stairs.
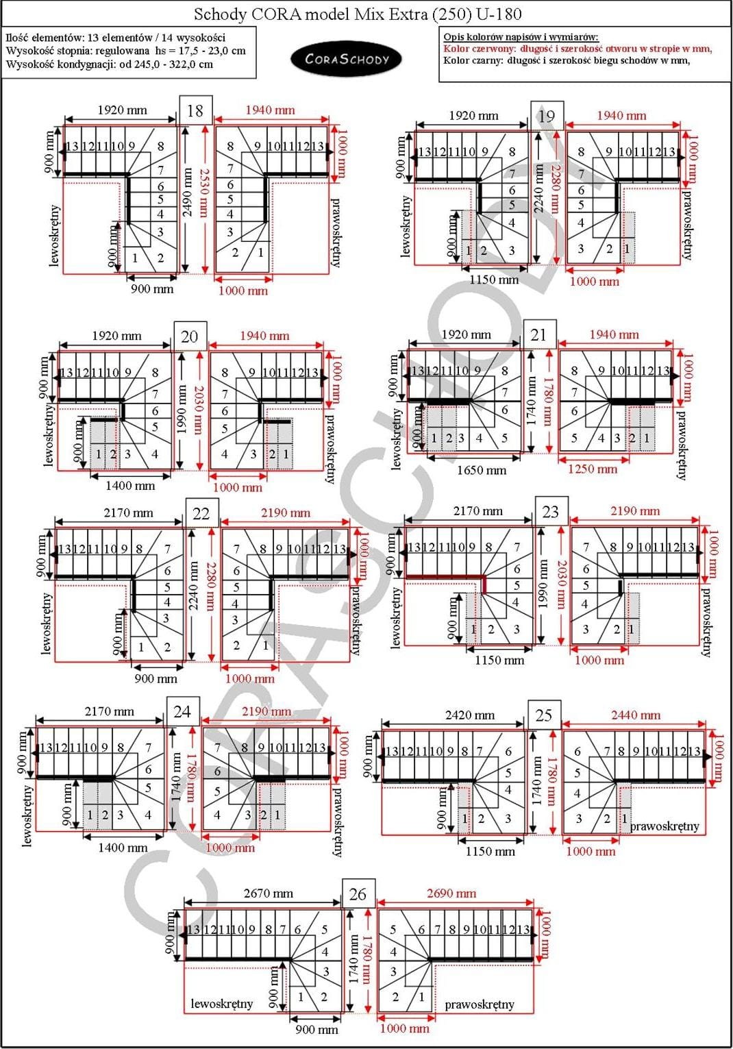
Mix Extra 00 stairs can be mounted in one of 52 configurations, fully presented by the manufacturer. This model has an original U-180 treatment, both right and left. It is possible to order a simple treatment after adding an annotation to the order form.
It is recommended to install the stairs against the wall, up to 5 cm away from it, which allows the installation of anchors. If the wall does not withstand the anchoring, the support column must be installed alternately. For free-standing stairs, it is planned to use a support pole, as well as railings securing on both sides, additional options on request.
Description: parameters, application
Application: interior stairs (inside the building)
Load capacity: maximum load per step 200 kg
Weight: A set of stairs / a set of 13 elements 230 kg
Type: single-beam stairs (modular)
Type of application: modular stairs, universal positioning and use, straight, left-handed, right-handed
Type of rooms: for small, medium and large rooms
Type of construction: modular metal 250
Configuration, layouts: it is possible to use the U-180 stairs in 52 layouts
Railing type: 25 mm filling / vertical balusters
Producer: Polish producer of modular metal stairs CORA system
Technical description
Storey height: from 245 to 322 cm
Pieces Quantity: 13pcs steps / 14 levels (top step below top floor)
Step height: adjustable from 17.5 / 23.0 cm
The size of the step: 310 (250 + 60) mm
The thickness of the step: 40 mm

Opening in the ceiling: minimum 1690 x 1780 mm,

The width of the stairs:
- U-180 torsion treatment: 900/900/900 mm
Type of construction: modular metal 250
Metal color: matt black structure (9005)
Wood finish (color): Illustrative image (on BR-232 beech) or other colors from the wood color palette
One-sided railing: in a typical set, one-sided railing from the first to the upper step
Railing description:
- vertical balusters (metal) 22 mm,
- recessed into steps
- 3 pcs. per step,
- 50 mm wood handrail,
Examples of heights, sizes
Floor to floor 193 - 253 cm - 10 steps / 11 high (- 2 steps)
Floor to floor 210 - 276 cm - 11 steps / 12 high (- 1 step)
Floor to floor 228 - 299 cm - 12 steps / 13 highs (- 1 step)
Floor to floor 245 - 322 cm - 13 steps / 14 high (standard)
From floor to floor 263 - 345 cm - 14 steps / 15 high (+ 1 step)
Floor to floor 280 - 368 cm - 15 steps / 16 high (+ 2 steps)
Additional information
Unusual stairs to size to be agreed
If it is not possible to adjust the stairs according to the diagrams below, we will make non-standard stairs to size.
We will make a design, stair valuation based on:
- sent views of the building cross-section with actual dimensions,
- making a sketch with real dimensions,
- taking illustrative photos of the ground floor and the first floor.
Sending information to the e-mail: [email protected]
We will prepare a special offer in our online store, in the category: On request.
Time limit for completion
- Delivery of stairs without assembly - 2 / 3 weeks
- Delivery of stairs with assembly - 4 / 6 weeks
CONTACT - technical advice: 9.00 a.m. - 7.00 p.m.
Tel / mobile: +48 509 046 444, Tel / fax: (0048) 65 / 511 92 16, e-mail: [email protected]
Salon and exhibition (Poland) ul. Gostyńska 61, 64-000 Kościan