Stairs modular CORA model Mix extra 08 U-180 13 elements
Description
Stairs modular CORA model Mix extra 08 U-180 13 elements
Mix Extra 08 stairs are stairs for self-assembly.
The set includes 13 elements of stairs, folded into 14 levels. The elements are made of solid wood (color to choose from the manufacturer's color palette) and powder coated steel in black matt structure (9005). After ordering the service for an additional fee, professional installation in the country is carried out by the manufacturer.
Modular stairs as a modern application in construction, replace traditional modern wooden stairs.
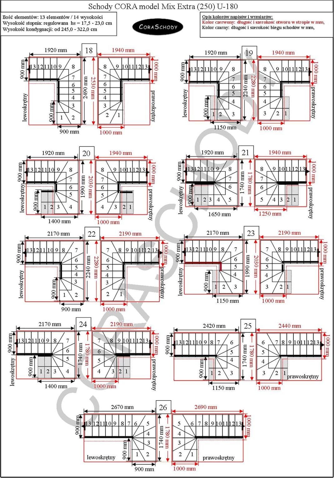
Mix Extra 08 stairs can be mounted in one of 52 configurations, fully presented by the manufacturer. This model has an original U-180 treatment, both right and left. It is possible to order a simple treatment after adding an annotation to the order form.
It is recommended to install the stairs against the wall, up to 5 cm away from it, which allows the installation of anchors. If the wall does not withstand the anchoring, the support column must be installed alternately. For free-standing stairs, it is planned to use a support pole, as well as railings securing on both sides, additional options on request.
Description, Parameters, Application
Application: interior stairs (inside the building)
Load capacity: maximum load per step 200 kg
Weight: A set of stairs / a set of 13 elements 220 kg
Type of stairs: single-beam stairs (modular)
Type of application: modular stairs, universal positioning and use, straight, left-handed, right-handed
Type of rooms: for small, medium and large rooms
Type of construction: modular metal 250
Wood finish: included in the price of the stairs (illustrative picture on beech, white matt (RAL 9003) or colored in a selected color from the wood color palette
Configuration, layouts: it is possible to use the U-180 stairs in 52 layouts
Railing type: filling with stainless steel bars (5 pcs.)
Producer: Polish producer of modular metal stairs CORA system
Technical description
height: 245/322 cm,
number of elements: 13 pieces of steps / 14 heights,
step height: adjustable 17.5 / 23.0 cm,
simple step size: 280 (220 + 60) mm
step thickness: 40 mm

ceiling opening: minimum 1690 x 1780 mm

metal color: black matt structure (RAL 9005)
width of the run:
- treatment U-180: 900/900/900 mm
type of wood: solid beech,
wood color: pictorial picture of the stairs included in the price of the stairs (on beech, RAL 9003 white mat paint) Other colors to choose from the wood color palette
Modular construction: 250 metal
One-sided balustrade
posts (metal) 25 mm
recessed steps / every second
filling with stainless steel rods (5 pcs.)
50 mm wood handrail
Examples of heights, sizes
Floor to floor 193 - 253 cm - 10 steps / 11 high (- 3 steps)
From floor to floor 210 - 276 cm - 11 steps / 12 high (- step 2)
Floor to floor 228 - 299 cm - 12 steps / 13 highs (- 1 step)
Floor to floor 245 - 322 cm - 13 steps / 14 high (Standard)
From floor to floor 263 - 345 cm - 14 steps / 15 high (+ 1 step)
Floor to floor 280 - 368 cm - 15 steps / 16 high (+ 2 steps)
Additional information
Unusual stairs to size to be agreed:
Unless you can adjust the stairs according to the following configurations, we will make custom-made stairs in the diagrams.
We will make a design, stair valuation based on:
- sent views of the building cross-section with actual dimensions,
- or making a sketch with actual dimensions and sending it to the e-mail: [email protected]
We will prepare a special offer in our online store in the category: on request.
Time limit for completion
- Delivery of stairs without assembly - 2 / 3 weeks
- Delivery of stairs with assembly - 4 / 6 weeks
CONTACT: Technical advice directly from 9.00 a.m. to 7.00 p.m.
Tel / mobile: +48 509 046 444. Tel / fax: (0048) 65 / 511 92 16, e-mail: [email protected]
Salon and exhibition (Poland) ul. Gostyńska 61, 64-000 Kościan