Kovové schody Mix Extra Metal U-180 13 prvkov - ŽIADAJTE CENU!
Description
Schody na individuálnu objednávku - VYŽIADAJTE CENU!
Kovové schody CORA, model Mix Extra Metal 250 U-180, 13 prvkov
Mix Extra Kovové schody sú schody na montáž.
Sada obsahuje 13 schodových prvkov, ktoré je možné zložiť do 14 úrovní. Prvky sú vyrobené z kockovaného plechu a práškovo lakovanej ocele v matnej čiernej štruktúre (RAL 9005). Po objednaní služby výrobca vykoná odbornú montáž v rámci krajiny za príplatok.
Kovové schody ako moderná aplikácia v stavebníctve nahrádzajú tradičné modulové schody.
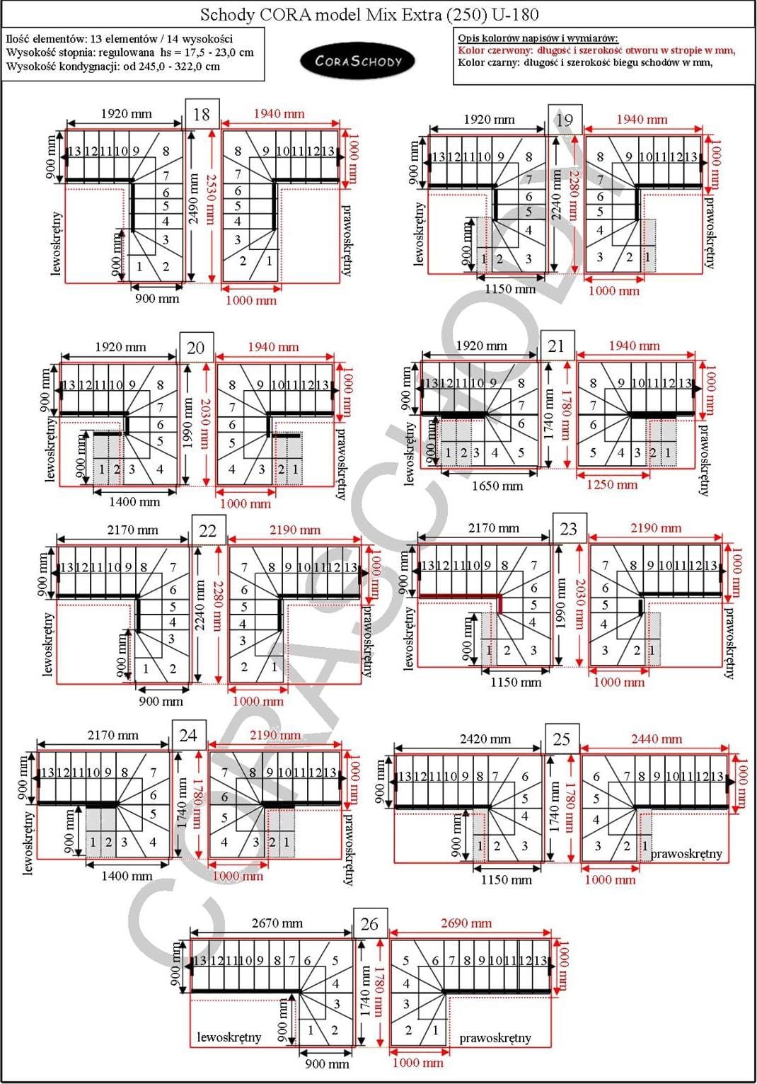
Schody Mix Extra Metal je možné inštalovať v jednej zo 52 konfigurácií, z ktorých všetky sú prezentované výrobcom. Tento model má originálnu úpravu U-180, pravú aj ľavú. Jednoduché ošetrenie je možné objednať po pridaní anotácie do objednávkového formulára.
Schody sa odporúča inštalovať k stene, do 5 cm od nej, čo umožňuje inštaláciu kotiev. Ak stena kotvenie nevydrží, treba namiesto nej použiť podperný stĺp. Pri samostatne stojacich schodiskách sa počíta s použitím podperného stĺpa, ako aj balustrády zaisťujúcej obe strany, ďalšie možnosti sú k dispozícii na požiadanie.
Dostupné farby na výber:
- čierna matná štruktúra (RAL 9005)
- strieborná matná štruktúra (RAL 9006)
- biela (RAL 9003)
- saténová oceľ
- antracitový grafit
Popis, parametre, aplikácia
Použitie: vnútorné schody (vnútri budovy)
Nosnosť: maximálne zaťaženie na krok 200 kg
Hmotnosť: Sada schodov / sada 13 prvkov 220 kg
Typ schodiska: jednoramenné schodisko (modulárne)
Typ použitia: modulové schody, univerzálna montáž a použitie, rovné, ľavé, pravé
Typ izieb: pre malé, stredné a veľké izby
Typ konštrukcie: modulárny kovový 250
Konfigurácia, dispozície: možné použitie schodov U-180 v 52 dispozíciách
Typ zábradlia: vertikálna výplň zábradlia (kovová) 22 mm
Výrobca: Poľský výrobca modulárnych kovových schodísk
Technický popis
výška: 245 / 322 cm,
počet prvkov: 13 ks schodíkov / 14 výšok,
výška schodíka: nastaviteľná 17,5 / 23,0 cm,
rozmer rovného kroku: 310 (250+60) mm
hrúbka kroku: 40 mm

otvor v strope: minimálne 1690 x 1780 mm

farba kovu: matná čierna štruktúra (RAL 9005)
šírka chodu:
- Úprava U-180: 900 / 900 / 900 mm
typ krokov: kockovaný list,
farba kroku: ilustračné foto: károvaný plech / matná čierna štruktúra (RAL 9005)
Modulárny dizajn: 250 kov
Jednostranná balustráda
výplň vertikálneho stĺpika (kov) 22 mm
drevená rukoväť 50 mm
Príklady výšok a veľkostí
Od podlahy k podlahe 193 - 253 cm - 10 schodov / 11 výšok (- 3 schody)
Od podlahy k podlahe 210 - 276 cm - 11 schodov / 12 výšok (- 2 schody)
Od podlahy k podlahe 228 - 299 cm - 12 schodov / 13 výšok (- 1 schod)
Od podlahy k podlahe 245 - 322 cm - 13 schodov / 14 výšok (štandard)
Od podlahy k podlahe 263 - 345 cm - 14 schodov / 15 výšok (+ 1 schod)
Od podlahy k podlahe 280 - 368 cm - 15 stupňov / 16 výšok (+ 2 stupne)
Ďalšie informácie
Dôležité informácie týkajúce sa bezpečnosti používania a používania schodov:
Schody by mali čiastočne smerovať k stene. Nemôžu sa vzdialiť od steny o viac ako 5 cm. To súvisí s bezpečnosťou používania schodov. Je potrebné použiť nástennú kotvu.
Ak sú schody umiestnené ako voľne stojace, odporúča sa použiť:
- nosná tyč,
- zábradlie na oboch stranách schodiska,
Schody na mieru podľa dohody:
Ak sa schody nedajú upraviť podľa nižšie uvedených konfigurácií, vyrobíme vám schody na mieru podľa schém.
Schody navrhneme a odhadneme na základe:
- predložené prierezy budovy so skutočnými rozmermi,
- alebo pripravte náčrt so skutočnými rozmermi a pošlite ho na e-mail: [email protected]
V našom internetovom obchode Vám pripravíme špeciálnu ponuku v kategórii na objednávku.
Časový limit na dokončenie
- Dodanie schodov bez montáže – 2 / 3 týždne
- Dodávka schodov s montážou – 4 / 6 týždňov
KONTAKT: Technické poradenstvo priamo od 9.00 do 19.00 hod.
Tel/mobil: +48 509 046 444. Tel/fax: (0048) 65 / 511 92 16, e-mail: [email protected]
Salón a výstava (Poľsko) ul. Gostyńska 61, 64-000 Kościan