Schody modulárne CORA model Mix extra 06 U-180 13 prvkov
Description
Schody modulárne CORA model Mix extra 06 U-180 13 prvkov
Schody Mix Extra 06 sú schody pre svojpomocnú montáž.
Sada obsahuje 13 prvkov schodov, poskladaných do 14 úrovní. Prvky sú vyrobené z masívneho dreva (farba na výber z farebnej palety výrobcu) a práškovo lakovanej ocele v strieborná matná štruktúra (9006). Po objednaní služby za príplatok odbornú montáž v danej krajine vykonáva výrobca.
Modulové schody ako moderná aplikácia v stavebníctve nahrádzajú tradičné moderné drevené schody.
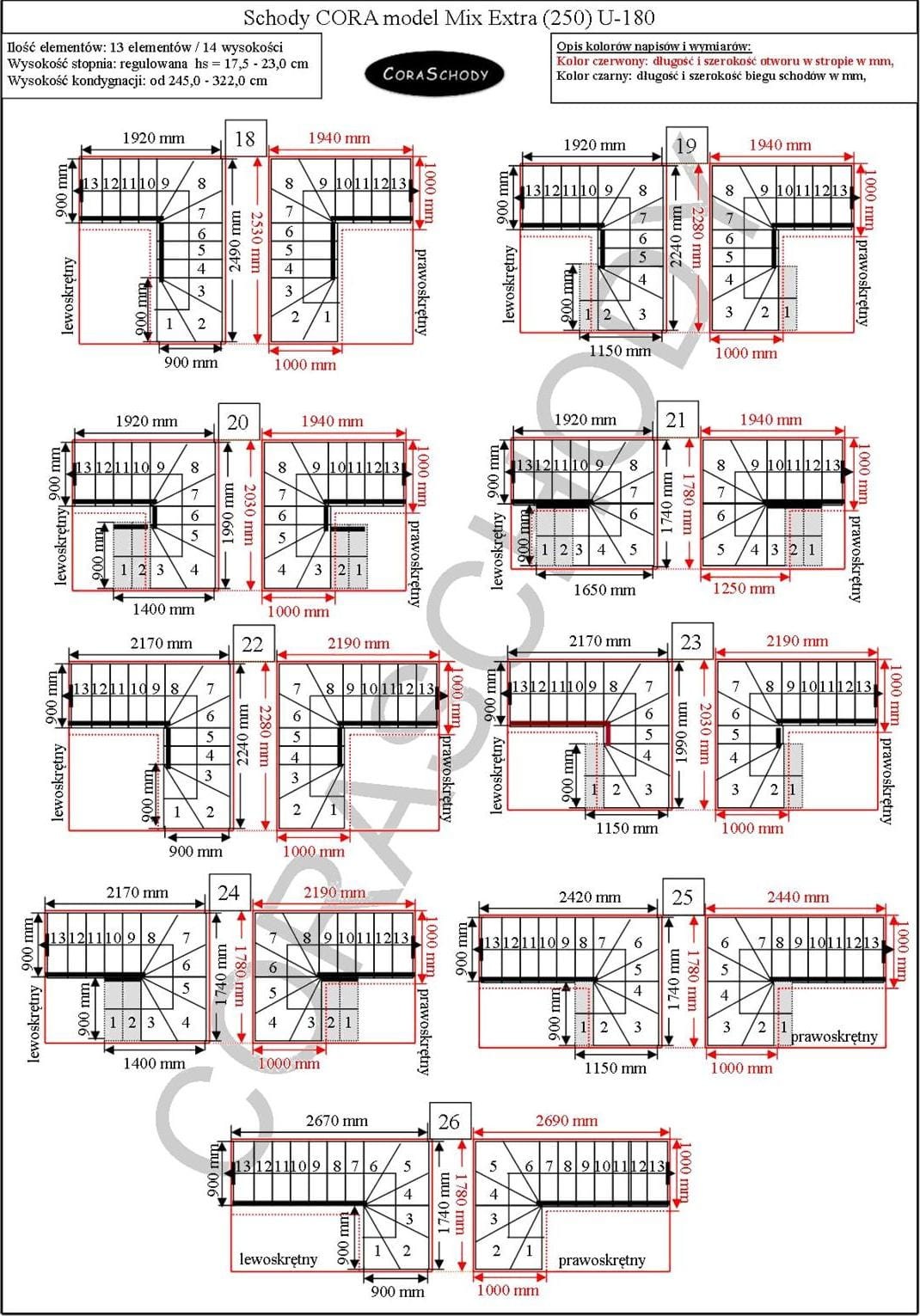
Schody Mix Extra 06 je možné namontovať v jednej zo 52 konfigurácií, plne prezentovaných výrobcom. Tento model má originálnu úpravu U-180, pravú aj ľavú. Jednoduché ošetrenie je možné objednať po pridaní anotácie do objednávkového formulára.
Schody sa odporúča inštalovať k stene, do vzdialenosti 5 cm od nej, čo umožňuje inštaláciu kotiev. Ak stena kotvenie nevydrží, je potrebné striedavo inštalovať nosný stĺp. Pre voľne stojace schody sa plánuje použitie opornej tyče, ako aj zábradlia na oboch stranách, ďalšie možnosti na požiadanie.
Popis, parametre, aplikácia
Použitie: vnútorné schody (vnútri budovy)
Nosnosť: maximálne zaťaženie na krok 200 kg
Hmotnosť: Sada schodov / sada 13 prvkov 220 kg
Typ schodiska: Jednotrámové schody (modulárne)
Typ použitia: modulové schody, univerzálne polohovanie a použitie, rovné, ľavotočivé, pravotočivé
Typ izieb: pre malé, stredné a veľké izby
Typ konštrukcie: modulárna kovová 250
Povrchová úprava dreva: v cene schodov (ilustračné foto na buku, BR-2436) alebo farbené vo vybranej farbe z palety farieb dreva
Konfigurácia, dispozície: schodisko U-180 je možné použiť v 52 dispozíciách
Typ zábradlia: výplň nerezovými tyčami (5 ks)
Výrobca: Poľský výrobca modulárnych kovových schodísk systému CORA
Technický popis
výška: 245/322 cm,
počet prvkov: 13 kusov schodíkov / 14 výšok,
výška schodíka: nastaviteľná 17,5 / 23,0 cm,
veľkosť jednoduchého kroku: 310 (250 + 60) mm
hrúbka kroku: 40 mm

stropný otvor: minimálne 1690 x 1780 mm

farba kovu: strieborná matná štruktúra (9006)
šírka dráhy:
- úprava U-180: 900/900/900 mm
druh dreva: masívny buk,
farba dreva: obrazové foto schodov v cene schodov (na buku, BR-2436)
Ďalšie farby na výber z palety farieb dreva
Modulárna konštrukcia: 250 kov
Jednostranná balustráda
stĺpiky (kovové) 25 mm
zapustené schodíky / každú sekundu
výplň z nerezových tyčí (5 ks)
Drevené zábradlie 50 mm
Príklady výšok, veľkostí
Od podlahy k podlahe 193 - 253 cm - 10 schodov / výška 11 (- 3 schody)
Od podlahy k podlahe 210 - 276 cm - 11 schodov / 12 na výšku (- 2 schody)
Od podlahy k podlahe 228 - 299 cm - 12 schodov / 13 výšok (- 1 schod)
Od podlahy k podlahe 245 - 322 cm - 13 schodov / 14 výška (štandard)
Od podlahy po podlahu 263 - 345 cm - 14 schodov / 15 výška (+ 1 schod)
Od podlahy k podlahe 280 - 368 cm - 15 schodov / 16 na výšku (+ 2 schody)
Ďalšie informácie
Dôležité informácie týkajúce sa bezpečného používania a aplikácie schodov:
Schody by mali čiastočne smerovať k stene. Nesmú byť od steny vzdialené viac ako 5 cm. Súvisí to s bezpečnosťou používania schodov. Kotva na stenu je nevyhnutná.
Ak sú schody umiestnené ako voľne stojace, je vhodné použiť:
- nosný stĺp,
- zábradlie na oboch stranách schodiska,
Nezvyčajné schody na rozmer po dohode:
Pokiaľ nedokážete upraviť schody podľa nasledujúcich konfigurácií, vyrobíme vám schody na mieru v schémach.
Vypracujeme návrh, ocenenie schodiska na základe:
- zaslané pohľady na prierez budovy so skutočnými rozmermi,
- alebo vyhotovením náčrtu so skutočnými rozmermi a zaslaním na e-mail: [email protected]
Špeciálnu ponuku Vám pripravíme v našom internetovom obchode v kategórii: na vyžiadanie.
Časový limit na dokončenie
- Dodanie schodov bez montáže - 2 / 3 týždne
- Dodávka schodov s montážou - 4 / 6 týždňov
KONTAKT: Technické poradenstvo priamo od 9.00 do 19.00 hod.
Tel / mobil: +48 509 046 444. Tel / fax: (0048) 65 / 511 92 16, e-mail: [email protected]
Salón a výstava (Poľsko) ul. Gostyńska 61, 64-000 Kościan