Modulare Treppe Modell CORA Mix extra 06 U-180 13 Elemente
Description
Modulare Treppe Modell CORA Mix extra 06 U-180 13 Elemente
Mix Extra 06 Treppen sind Treppen zur Selbstmontage.
Modulare Treppen als moderne Anwendung im Bauwesen ersetzen traditionelle moderne Holztreppen.
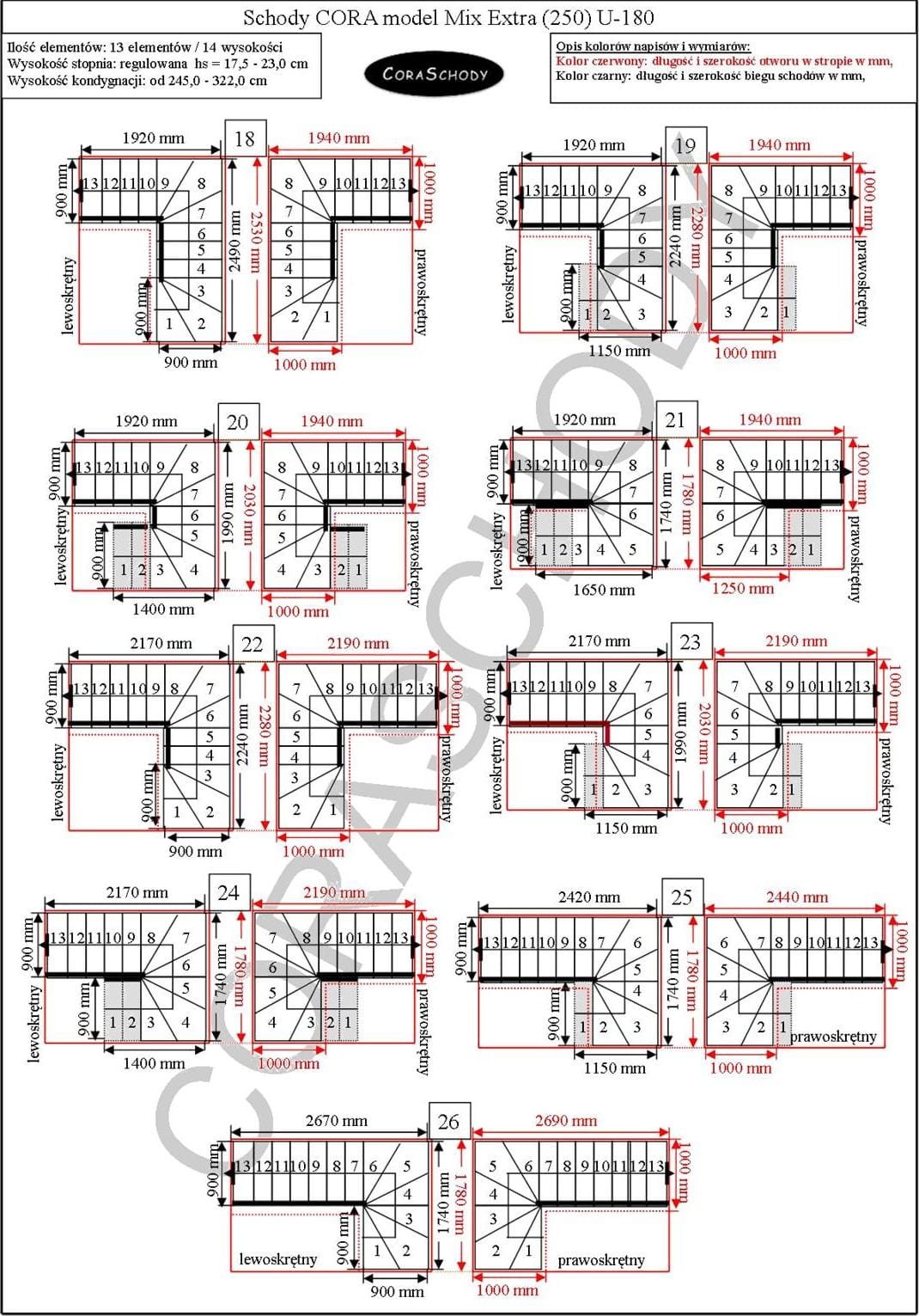
Die Treppe Mix Extra 06 kann in einer von 52 Konfigurationen montiert werden, die vom Hersteller vollständig präsentiert werden. Dieses Modell hat eine originale U-180-Behandlung, sowohl rechts als auch links. Es ist möglich, eine einfache Behandlung zu bestellen, nachdem Sie dem Bestellformular eine Anmerkung hinzugefügt haben.
Es wird empfohlen, die Treppe bis zu 5 cm von ihr entfernt an der Wand zu installieren, was die Installation von Ankern ermöglicht. Hält die Wand der Verankerung nicht stand, muss die Tragsäule wechselseitig eingebaut werden. Bei freistehenden Treppen ist der Einsatz einer Stützstange sowie beidseitiger Geländersicherung vorgesehen, weitere Optionen auf Anfrage.
Anwendung: Innentreppe (innerhalb des Gebäudes)
Belastbarkeit: maximale Belastung pro Stufe 200 kg
Gewicht: Ein Treppensatz / ein Satz mit 13 Elementen 220 kg
Treppenart: Einholmtreppe (modular)
Anwendungsart: Modultreppe, universelle Positionierung und Verwendung, gerade, linksgängig, rechtsgängig
Art der Zimmer: für kleine, mittlere und große Zimmer
Bauart: Modular Metall 250
Holzdekor: im Preis der Treppe enthalten (illustrierendes Foto auf Buche, BR-2436) oder in der ausgewählten Farbe aus der Holzfarbpalette gefärbt
Konfiguration, Grundrisse: Die Treppe U-180 kann in 52 Grundrissen verwendet werden
Geländertyp: Füllung mit Edelstahlstäben (5 Stk.)
Hersteller: Polnischer Hersteller von modularen Metalltreppen des CORA-Systems
Technische Beschreibung
Höhe: 245/322 cm,
Anzahl Elemente: 13 Stufen / 14 Höhen,
Stufenhöhe: verstellbar 17,5 / 23,0 cm,
einfache Schrittweite: 310 (250 + 60) mm
Stufenstärke: 40 mm

Deckenöffnung: mindestens 1690 x 1780 mm

Metallfarbe: Silber Struktur matt (9006)
Laufbreite:
- Behandlung U-180: 900/900/900 mm
Holzart: Buche massiv,
Holzfarbe: Bildfoto der Treppe im Preis der Treppe enthalten (auf der Buche, BR-2436)
Andere Farben zur Auswahl aus der Holzfarbpalette
Modularer Aufbau: 250 Metall
Einseitige Balustrade
Pfosten (Metall) 25 mm
vertiefte Stufen / jede Sekunde
Füllung mit Edelstahlstäben (5 Stk.)
50 mm Holzhandlauf
Beispiele für Höhen, Größen
Boden zu Boden 193 - 253 cm - 10 Stufen / 11 hoch (- 3 Stufen)
Boden zu Boden 210 - 276 cm - 11 Stufen / 12 hoch (- 2 Stufen)
Boden zu Boden 228 - 299 cm - 12 Stufen / 13 Höhen (- 1 Stufe)
Boden zu Boden 245 - 322 cm - 13 Stufen / 14 hoch (Standard)
Etage zu Etage 263 - 345 cm - 14 Stufen / 15 hoch (+ 1 Stufe)
Boden zu Boden 280 - 368 cm - 15 Stufen / 16 hoch (+ 2 Stufen)
Zusätzliche Information
Wichtige Informationen zur sicheren Benutzung und Anwendung der Treppe:
Die Treppe sollte teilweise gegen die Wand laufen. Sie dürfen nicht weiter als 5 cm von der Wand entfernt sein. Es bezieht sich auf die Sicherheit bei der Benutzung der Treppe. Eine Verankerung an der Wand ist unerlässlich.
Wenn die Treppe freistehend angeordnet ist, ist es ratsam zu verwenden:
- Stützsäule,
- Geländer auf beiden Seiten der Treppe,
Ungewöhnliche Treppe nach zu vereinbarender Größe:
Sofern Sie die Treppe nicht gemäß den folgenden Konfigurationen anpassen können, fertigen wir in den Diagrammen maßgefertigte Treppen.
Wir erstellen ein Design, eine Treppenbewertung basierend auf:
- Ansichten des Gebäudequerschnitts mit tatsächlichen Abmessungen zugesendet,
- oder eine Skizze mit tatsächlichen Abmessungen erstellen und an die E-Mail-Adresse senden: [email protected]
Wir bereiten ein Sonderangebot in unserem Online-Shop in der Kategorie vor: auf Anfrage.
Frist für die Fertigstellung
- Lieferung der Treppe ohne Montage - 2 / 3 Wochen
- Lieferung der Treppe mit Montage - 4 / 6 Wochen
KONTAKT: Technische Beratung direkt von 9.00 bis 19.00 Uhr
Tel / Handy: +48 509 046 444. Tel / Fax: (0048) 65 / 511 92 16, E-Mail: [email protected]
Salon und Ausstellung (Polen) ul. Gostyńska 61, 64-000 Kościan